Описание
Установка может использоваться для перекачивания конденсата и других жидкостей, в том числе в опасных помещениях. Собирается на базе насоса объёмного действия, работающего при помощи поплавкового механизма.
| Характеристики: | ||
| • Рабочая среда: высокотемпературные жидкости, такие как конденсат, масла и др. • Максимальная температура: 250°С • Минимальная температура: -10°С • Типоразмеры: DN15-200 • Присоединение: фланцевое EN1092–1 PN16. Специальные фланцы по запросу. Внутренняя резьба ISO 7/1 Rp (BS21) • Установка: горизонтальная в соответстствии с инструкцией по монтажу и эксплуатации |
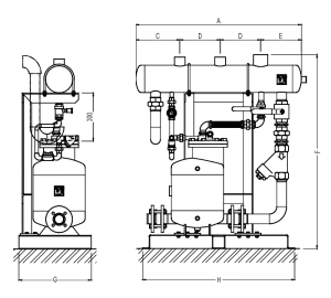
Весогабаритные характеристики:

| DN | A | C | D | E | F | G | H | Вес, кг |
| 25 | 990 | 255 | 250 | 235 | 1210 | 450 | 940 | 145 |
| 40 | 1090 | 305 | 250 | 285 | 1210 | 450 | 940 | 154 |
| 50 | 1120 | 320 | 250 | 296 | 1260 | 450 | 940 | 188 |
| 80х50 | 1140 | 330 | 250 | 310 | 1330 | 535 | 1040 | 230 |
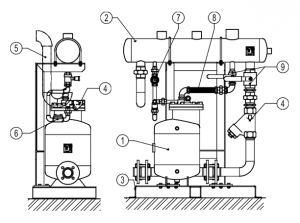
Спецификация материалов:

| № | Наименование | Материал |
| 1 | Насос | по запросу |
| 2 | Ресивер (атмосферная емкость) | по запросу |
| 3 | Металлическая рама | по запросу |
| 4 | Фильтр | по запросу |
| 5 | Переливной дренаж | по запросу |
| 6 | TH21 Конденсатоотводчик | по запросу |
| 7 | SW12 Стекло смотровое | по запросу |
| 8 | Гибкая подводка | по запросу |
| 9 | Шаровые краны | по запросу |

Отзывы
Отзывов пока нет.